learn more >



The Formery is an interior design studio on the South Coast of NSW inspired by elemental nature. A place of quiet shaping where intimate spaces manifest. Borrowing soul from the foundry: a workshop where raw matter is hand-forged by meaningful rhythm into enduring objectures; forme - a reverence for the subtle act of crafting with restraint and care; and fomentation - the gentle stirring of atmosphere into presence, The Formery is where feeling precedes, and space remembers its origin. 

Inspired by the tactility of organic media like clay, grain, stone and sand, The Formery is the personification of grounded design, where spaces that are rich in texture, yet refined in form are borne through material honesty, quiet cadence, and architectural stillness. 

INTERIOR DESIGN
South Coast NSW

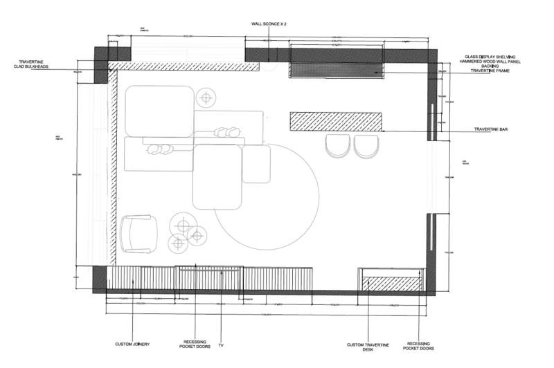
project spotlight | aescend aesthetics

CLIENT: 
LOCATION
BRIEF: 

01 

02 

Aescend Aesthetics
Milton NSW
To design a visually rich, contemporaneous and aesthetic space for a boutique cosmetic clinic. One that speaks of quiet luxury and refinement, though feels inviting and relaxed while remaining compliant with the requirements for a medical facility that conducts semi-invasive procedures.

learn more >

Aescend Aesthetics
Milton NSW


To design a visually rich, contemporaneous and aesthetic space for a boutique cosmetic clinic. One that speaks of quiet luxury and refinement, though feels inviting and relaxed while remaining compliant with the requirements for a medical facility that conducts semi-invasive procedures.

OUR PROCESS

Working with The Formery is a bespoke, responsive process where touch points are created to ensure an adaptable design schema that fully captures your intent. We begin with a comprehensive client intake survey, with the aim of  learning more about your space, vision, and personality. This invitation is not merely about preferences, but about understanding your story - the palettes you return to, the shapes that soothe and the way you move through light and silence. It is how we learn the language of your space, so that each presentation speaks fluently, and each visual resounds resonantly. 

learn more >

01 

JOIN US FOR A DISCOVERY SESSION

03

CONFIRM BRIEF AND SCOPE OF WORKS

04

ACCEPT CONTRACT

05

SITE SURVEY

06

CONCEPT BOARD PRESENTATION + FEEDBACK

07

02

COMPLETE NEW CLIENT INTAKE FORM

 SELECTIONS PRESENTATION + FEEDBACK

08

COORDINATION, CURATORSHIP + DELIVERY

Thank you for subscribing!

learn more

DESIGN Services

COMPREHENSIVE OR MINIMAL

The Formery works with EMBOLDENED INDIVIDUALS who are drawn to depth, who crave RESONANCE and DEMAND PRESENCE. Small residential and commercial CONNOISSEURS who value design, REFUSE TO BE DEFINED by trends but are guided by a DESIRE TO FORGE PLACES that are UNIQUE, beautiful and sensory. They come to us with a YEARNING for spaces that carry meaning, and are dutifully considered. TOGETHER we embark on slow, ATTENTIVE PROJECTS where boundaries are gently flexed and every decision becomes a QUIET TRANSLATION OF THE INHABITANT. In support of this, The Formery offers a  CONSIDERED SUITE OF SERVICES shaped by intuition, CADENCE and CRAFT. Rather than a template, we begin with TEMEPREMENT,  an ideology FOUNDED IN ACTIVE LISTENING, that allows us to interpret your intent and establish HAPTIC and FUNCTIONAL FOUNDATIONS. Our offerings span from conceptual EMERGENCE and spatial PLANNING to CURATORSHIP, SOURCING, STYLING and bespoke CUSTOMISATION. The elements of our services are able to be individually purchased or combined into a  COMPLETE, COMPREHENSIVE INTERIOR DESIGN PROCESS, imbued with INTENTION where materials, mood and meaning are cultivated into TANGIBLE SPACES.  

01

CONCEPTUALISING

02

PLANNING

03

CURATORSHIP

04

SOURCING

05

STYLING

06

PROJECT MANAGEMENT

07

CUSTOMISATION

SOURCING

CURATORSHIP

PLANNING

CONCEPTUALISING

01

02

03

04

Thank you for subscribing!

Thank you for subscribing!

learn more >

RECENT PROJECTS


Click the link to see our recent and upcoming work. From commercial to residential. Entire builds, renovations, styling and sourcing. 

01

AESCEND AESTHETICS, MILTON

02

BEAVERSTONE, MILTON

03

SOLACE, MILTON

05

BEAVERSTONE, MILTON

04

BEAVERSTONE, MILTON

01

02

03

04

05

Thank you for subscribing!

Thank you for subscribing!